BD Sdružení
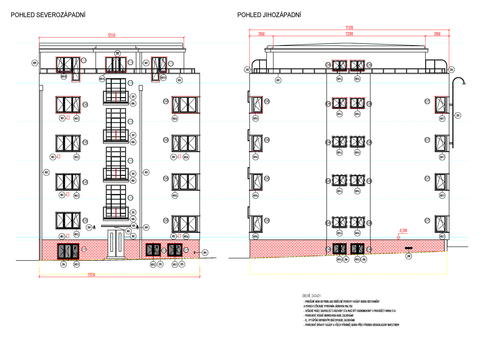
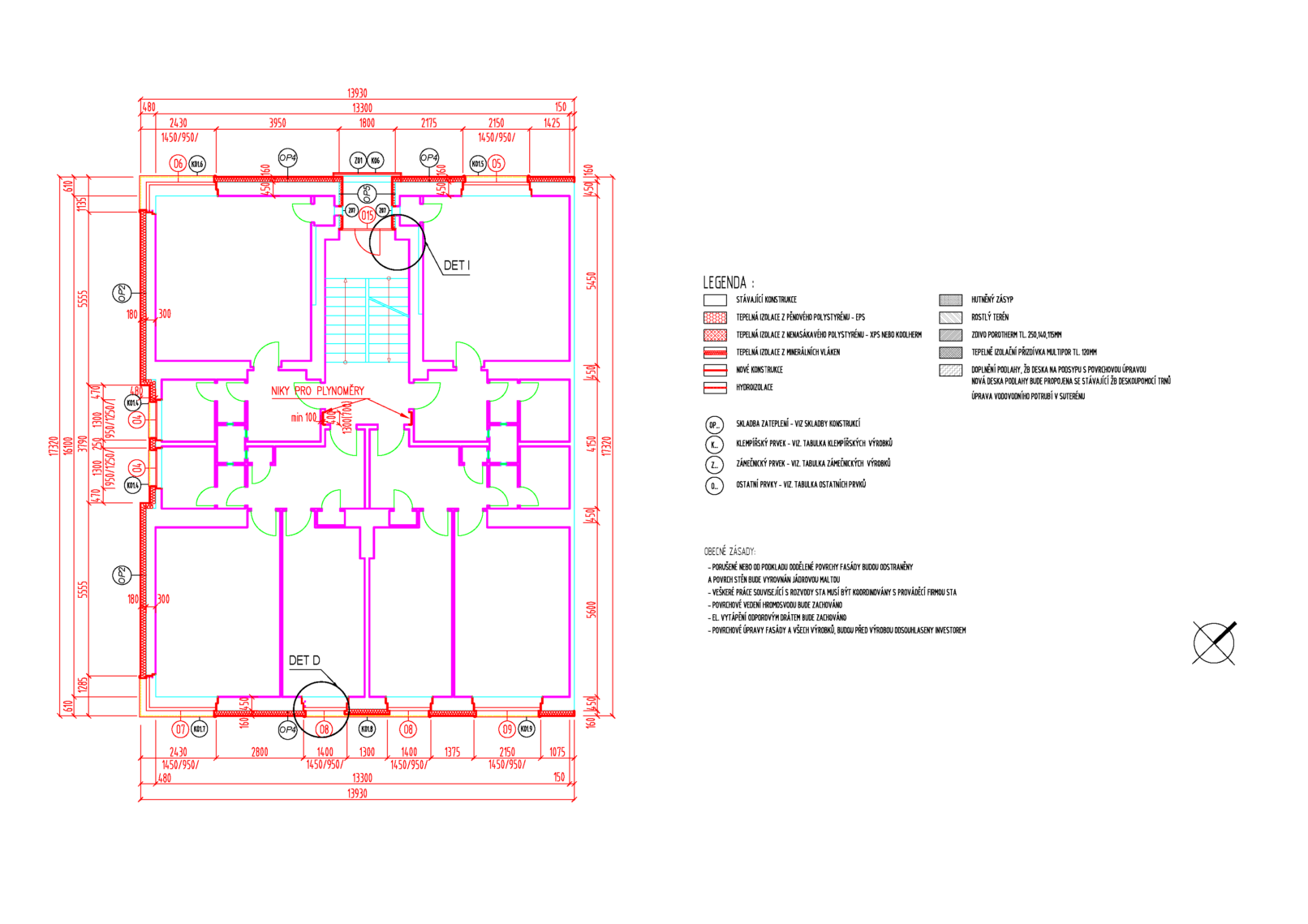
Rekonstrukce bytového domu v ulici Sdružení 29 v Praze 4 Nuslích spočívala v zateplení fasády, výměně oken, zateplení a opravy terasy v 5.NP. V suterénu byl rekonstruován prostor sklepních kójí a dvou nebytových jednotek. Na spolešné schodišťové chodbě byly provedeny nové rozvody plynu a elektricky, včetně jednotného usazení plynoměru a sdružení elektroměrových skříní v suterénu.





