BYT PRAHA 4
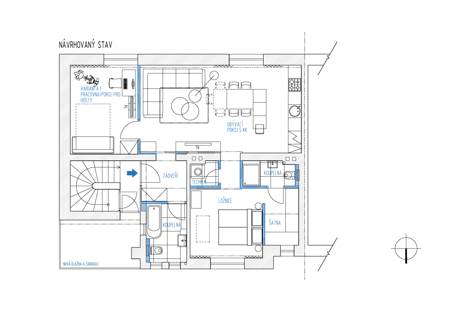
Navrhli jsme a následně zrealizovali úpravy bytu v rodinném domě v Praze Michli. Stávající stav bytu byl původní a neodpovídal potřebám mladého manželského páru. Dispozice jsme navrhli tak, by vznikl hlavní obytný prostor s kuchyní, ložnice se samostatnou koupelnou, velká koupelna a budoucí dětský pokoj. Prostorem se prolíná voskovaná dubová podlaha a světlé odstíny.
Místo: Praha 4 – Michle
Klient: soukromá osoba
Stupeň PD: interiér
Stav: zrealizováno
Dodavatel stavby: Eko-servis, s.r.o.
Datum: 2016
Foto: Veronika Kňourková






