HOMUTŮV STATEK
Záměrem autorů studie a zároveň investorů bylo zřídit z opuštěného statku rodinný penzion. Veškeré úpravy byly zamýšleny s velkým respektem k původní stavbě. Jedná se o památkově chráněný objekt v CHKO Kokořínsko. Stavba leží v obci Sedlec u Mšena, nad údolím zvaným Kočičina.
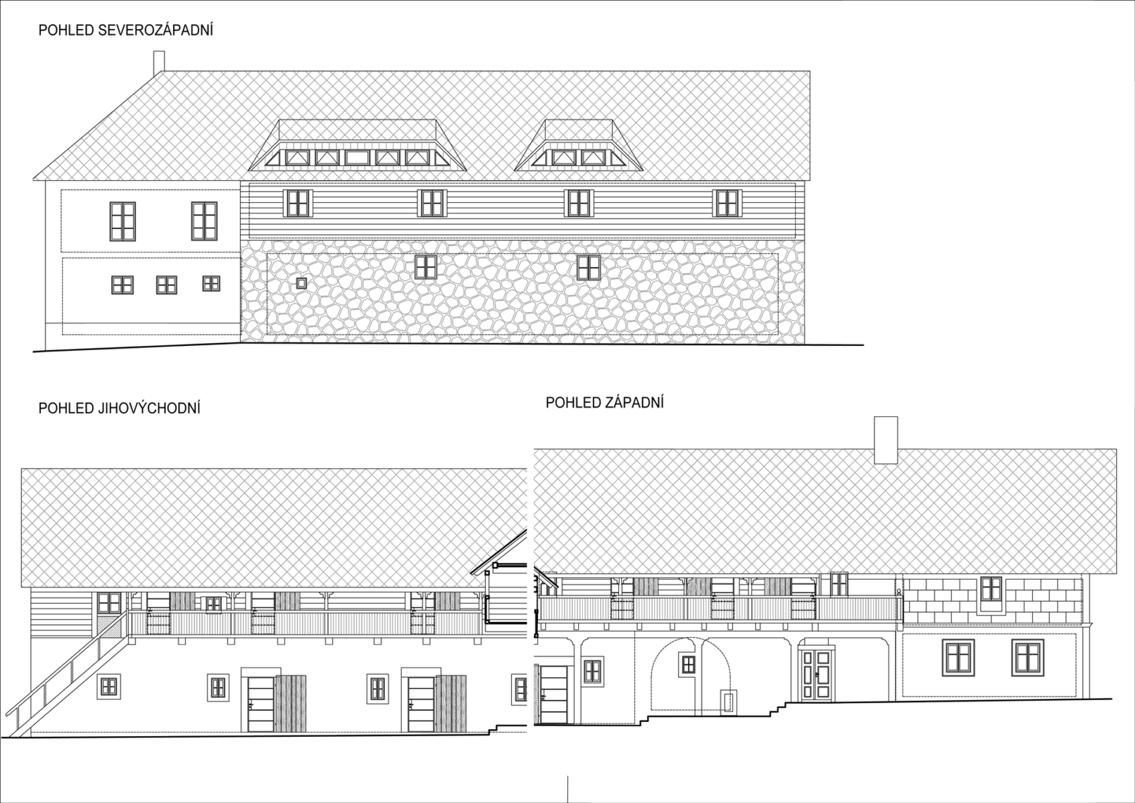
Od začátku bylo snahou investora a architekta zachovat původní ráz stavby s důrazem na původním stavební materiály a detaily. Ke stavbě se přistupovalo velice citlivě. V maximální možné míře byly zachovány původní dřevěné prvky. Při návrhu dispozice se vycházelo z původního členění prostoru.
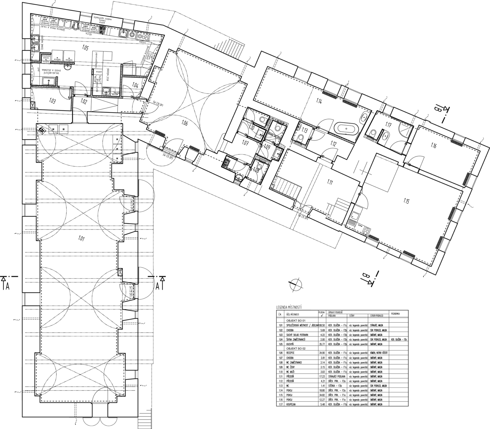
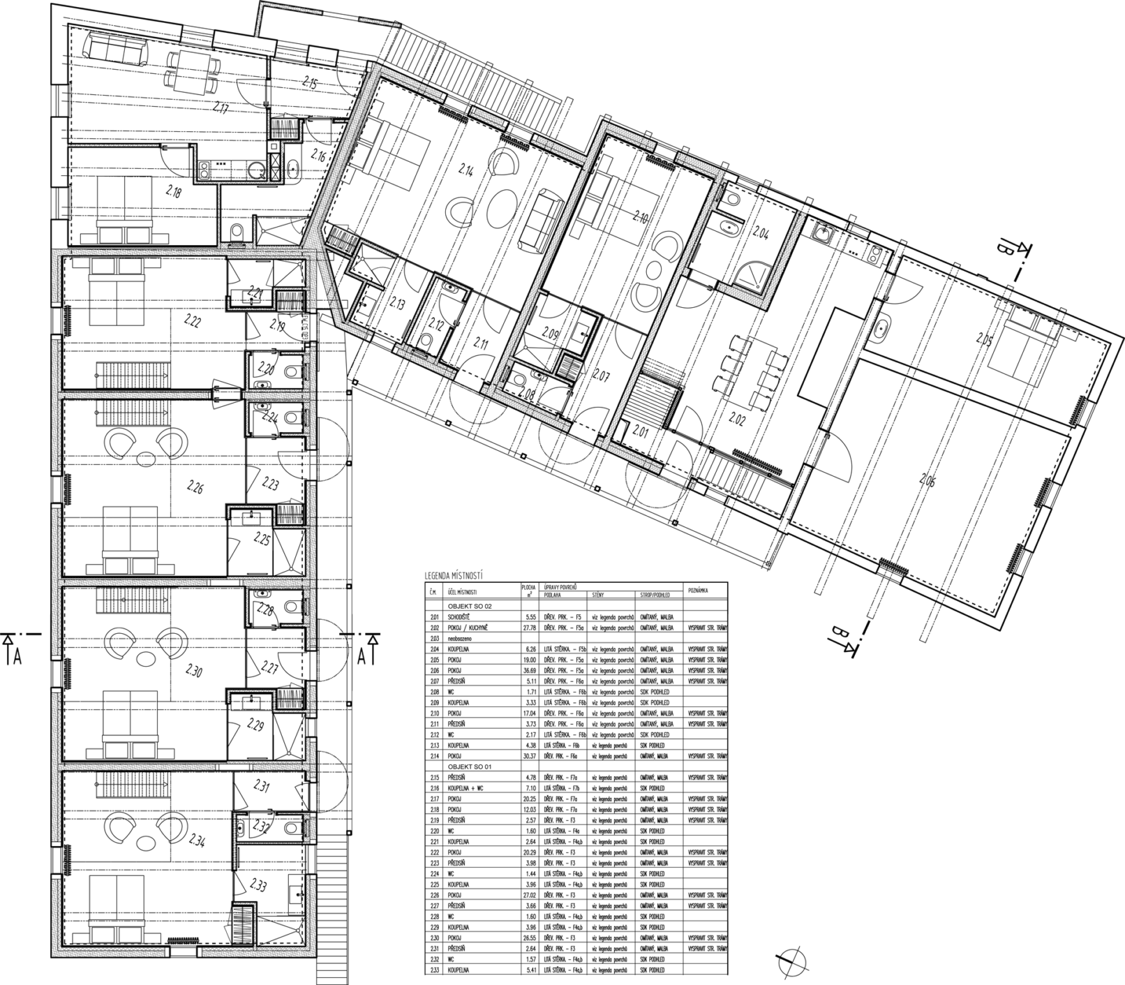
Hlavní hmota statku má tvar písmene L. V přízemí se v původní hospodářské části navrhla jídelna a společný prostor pro hosty, spolu se zázemím kuchyně a ve středu dispozice vstupní prostor s recepcí. V původní obytné části byl navržen apartmán a dvojlůžkový pokoj. Nad přízemím se nachází patro s dalšími pokoji a apartmánem. Toto patro je přístupné po otevřeném venkovním, dřevěném schodišti a krásné, původní dřevěné pavlači, ze které se vchází do jednotlivých pokojů. Nad jídelnou byl již v minulosti proveden nový krov a původní prostor zde byl otevřen až do hřebene střechy. Proto byl tento prostor využit na mezonetové pokoje. V roubené části se nacházejí menší, dvojlůžkové pokoje a v pravém křídle je další prostorný apartmán.
Střecha byla zachována původní, bez výraznějších zásahů do krovu. Ve středu dispozice byla navržena technická místnost se strojovnou vzduchotechniky a centrálním ohřevem teplé vody. Část půdy zůstala zatím nevyužita.
U mezonetových pokojů byly ve střeše provedeny nové vikýře, které byly velice citlivě vsazeny do konstrukce střechy.
V areálu statku se nachází ještě další objekt, stodola, ve které je umístěna kotelna na tuhá paliva a technické zázemí provozu penziónu. V budoucnu bude stodola přestavěna na wellness centrum s bazénem a saunou. V podkroví stodoly jsou navrženy dva přednáškové sály pro možné využití na teambuildingové akce.
Stavba byla oceněna cenou za nejlepší rekonstrukci památkového objektu v soutěži Stavba roku středočeského kraje 2018.
Místo: Sedlec u Mšena
Klient: soukromá osoba
Arch.studie: Ing. Kateřina Lorencová Holanová
Ing. Arch. Petr Lorenc
Stupeň PD: DSP, DPS APROPOarch
Datum: 06/2015















