RD ÚJEZD NAD LESY
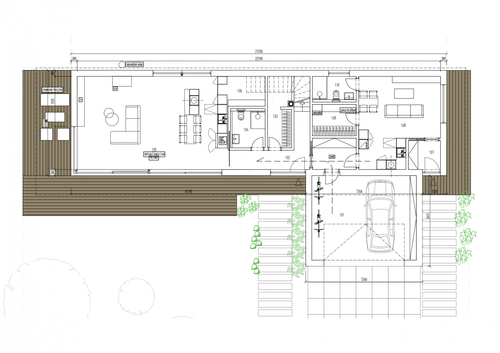
Navrhli jsme dům pro investorku dle jejích požadavků na nadstandardně vybavený dům s hlavní bytovou jednotkou a garsoniérou pro maminku. Dům je navržen v bílé omítce s horizontálními výraznými pásy a velkými prosklenými plochami. Bílou plochu narušuje hmota garáže z pohledového betonu.
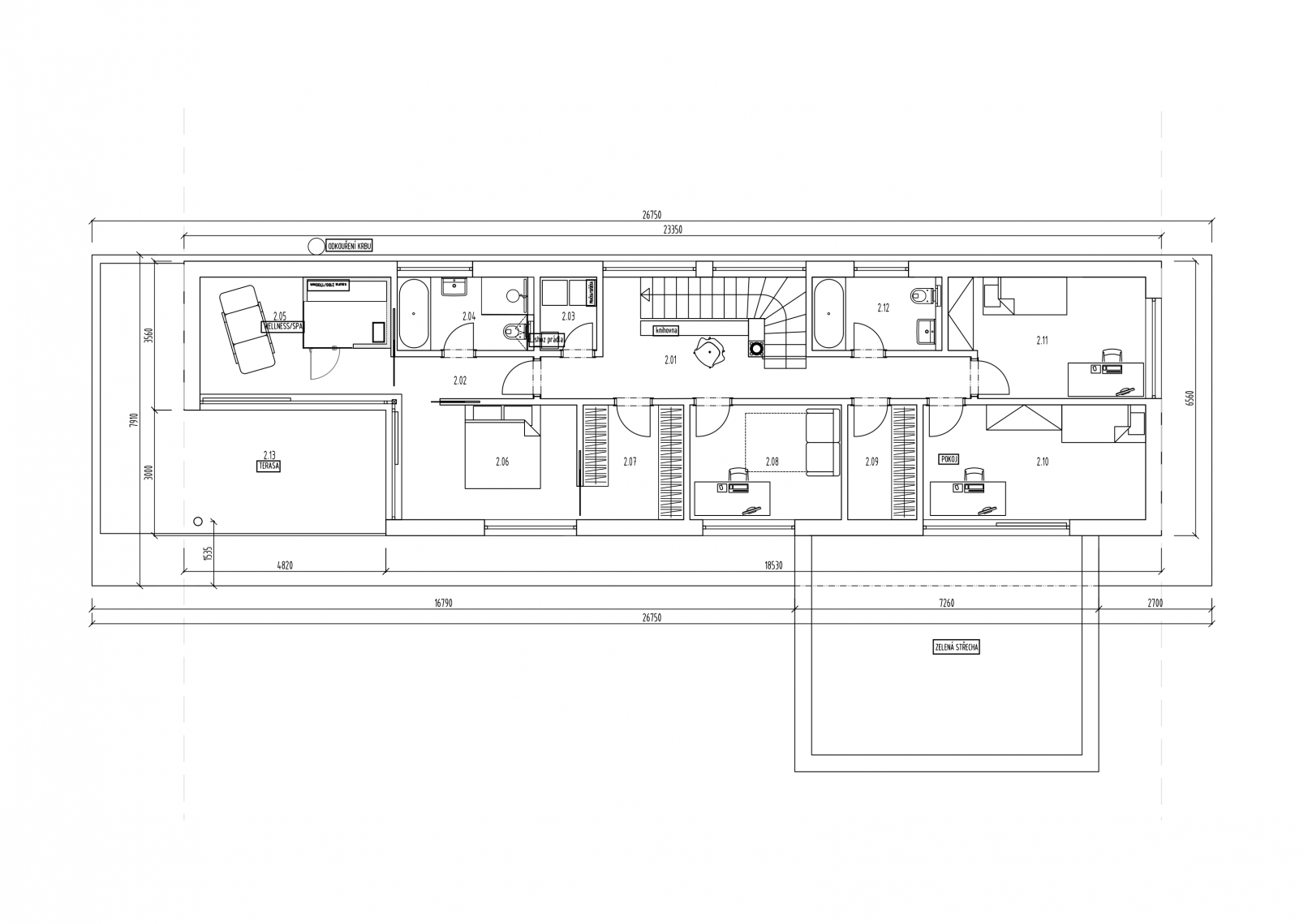
Velkorysý obývací pokoj má výstup přímo na zahradu a na terasu s letní kuchyní a posezením. V patře jsou navrženy ložnice a příslušenství včetně wellness/fitness a dostatečných úložných prostor.
Místo: Praha – Újezd nad Lesy
Klient: soukromá osoba
Stupeň PD: studie interiéru, DSP, DPS
Datum: v realizaci





