RD Stříbrná Lhota
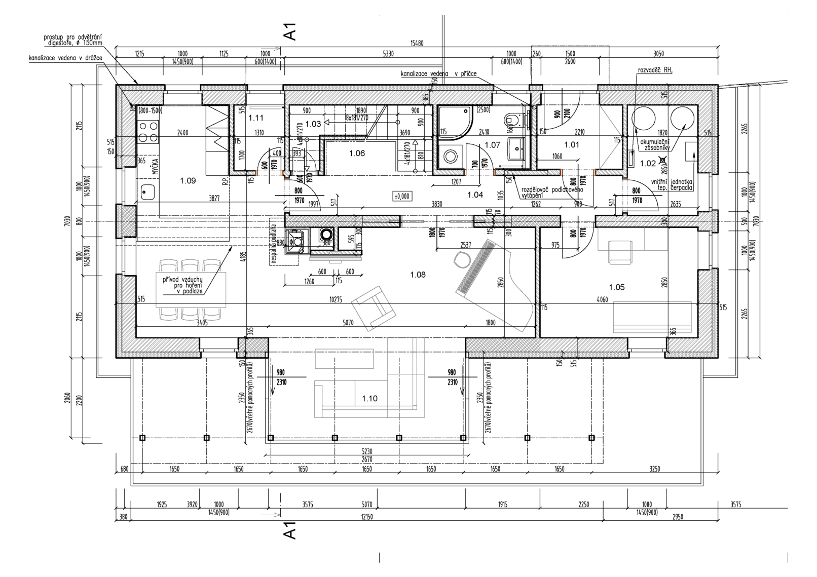
Novostavba rodinného domu na stavební parcele ve Stříbrné Lhotě. Dům je nepodsklepený, se dvěma nadzemními podlažími.
V přízemí se nachází velká obytná místnost s kuchyní a jídelnou, pokoj pro hosty a technická místnost s tepelným čerpadlem. V patře jsou ložnice dětí a rodičů se dvěma koupelnami.

