RD KUCHAŘ
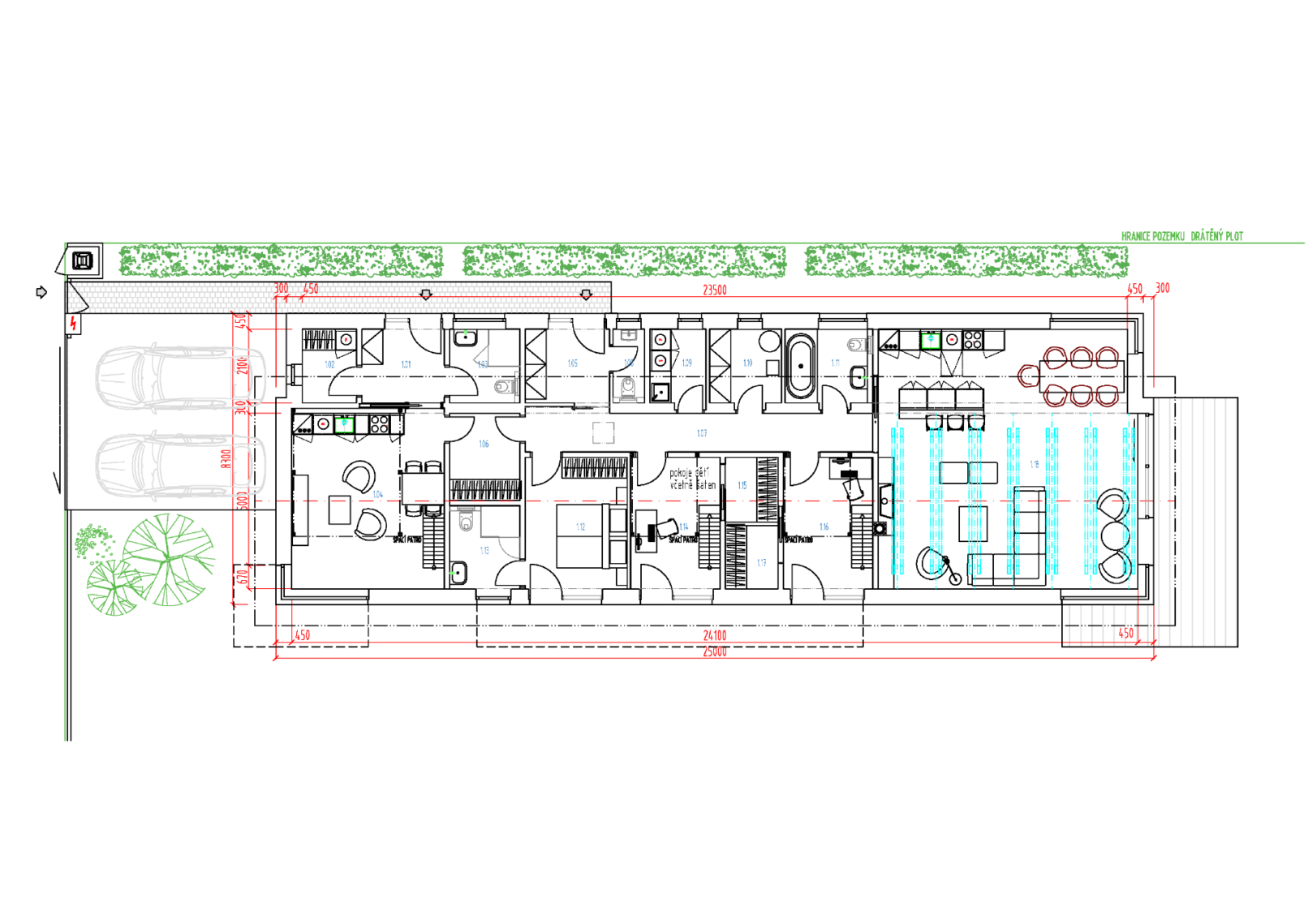
Zadáním byl rodinný dům s dvěma bytovými jednotkami. Kdy hlavní část domu bude sloužit rodině a menší samostatná jednotka je plánována do budoucna pro potřeby prarodičů případně jako startovací byt pro dospívající dceru. Dům má tedy dva vchody ze severní strany. Jednotky je ale možné ve vnitřním prostoru propojit nebo užívat samostatně. Obytné pokoje jsou otočeny na jih a mají velká okna směrem do zahrady.
Dům je přízemní a má jednoduchý obdélníkový tvar završený sedlovou střechou. Ze severní strany je jednoduchá přístavba s plochou střechou, která obsahuje koupelny a technické místnosti. Prostor obývacího pokoje je otevřen do krovu s viditelnou dřevěnou konstrukcí. Ostatní místnosti mají podhled ve výšce 2,6m. V dětských pokojích je do budoucna plánováno zvýšené patro rovněž do prostoru krovu.
Materiálově je dům navržen ve světlé hladké omítce, severní přístavba s obkladem Klinker cihelnými pásky a na střeše černý plech. Ve stejné barvě i komplet klempířské konstrukce.
Místo: Kuchař, Vysoký Újezd
Klient: soukromá osoba
Stupeň PD: sloučené DUR/DSP
Stav: v realizaci
Datum: PD 2017, realizace 2018




