RD KLÁNOVICE
Architektonická studie řeší novostavbu rodinného domu na parcele v zastavěné lokalitě severozápadní části Klánovic. Při umístění nového domu na pozemek bylo snahou zachovat stávající ořešák. Vzrostlý strom bude tvořit stín a intimní zákoutí zahrady.
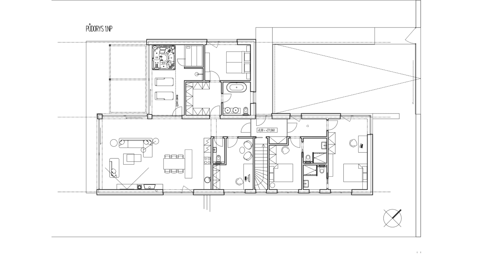
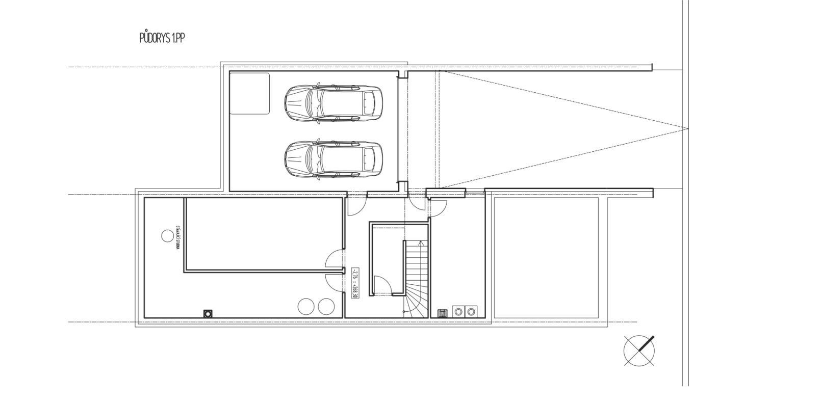
U nového návrhu rodinného domu jsme vycházeli z požadavku stanoveného územním plánem. Dle stanovených koeficientů je možné na pozemku vystavět rodinný dům pouze s jedním nadzemním podlažím s celkovou zastavěnou plochou nepřevyšující 20% z plochy pozemku. S těmito „omezeními“ je garáž a technické zázemí domu umístěna do suterénu domu.
Obytné patro je v jedné výškové úrovni. Hlavní vstup do domu je umístěn zhruba ve středu dispozice a odděluje soukromou část pro hosty nebo děti od společenské části pro rodiče. Ze vstupního zádveří je vstup do chodby, ze které je přístupný pokoj pro hosty a dětský pokoj. Oba pokoje mají vlastní hygienické zázemí. Dále je zde přístup na schodiště propojující suterén a obytné patro a třetí vstup je chodby, která ústí do velkého obytného prostoru s kuchyňským koutem. Z krátké chodby je vstup do pracovny, na samostatnou toaletu a do intimní části rodičů, kde je ložnice, šatna a koupelna. Na hlavní obytný prostor navazuje relaxační místnost (wellness) se saunou, vířivkou a samostatnou sprchou. Část wellness a hlavní obytná místnost jsou odděleny pouze prosklenou příčkou.
Na prostor wellness a hlavní obytné místnosti navazuje venkovní terasa, která je krytá pergolou z hliníkové konstrukce.
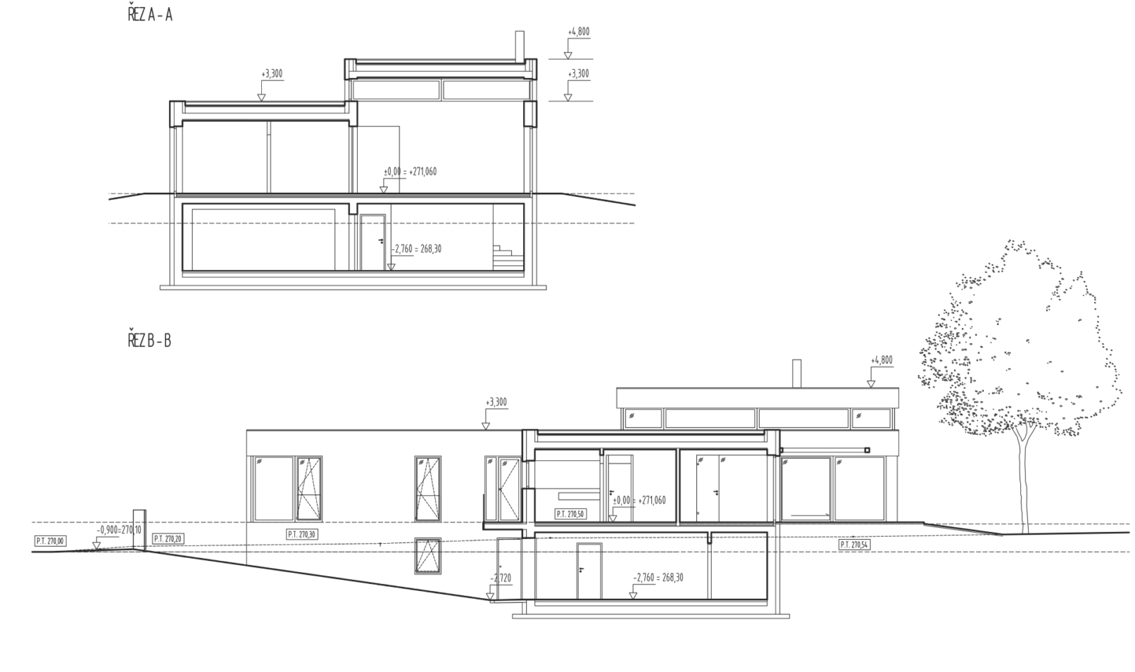
Vnější vhled a tvar domu vychází ze stávajících trendů výstavby rodinných domů a snaží se v sobě odrážet eleganci tvarů prvorepublikových, funkcionalistických vil.
Místo: Praha – Klánovice
Klient: soukromá osoba
Stupeň PD: arch. studie, projekt interiéru, DSP
Zastavěná plocha – 216,95m2
Zpevněné plochy – 150m2
Datum: 08/2018









